Rif: nuova cicciano
CICCIANO
NAPOLI
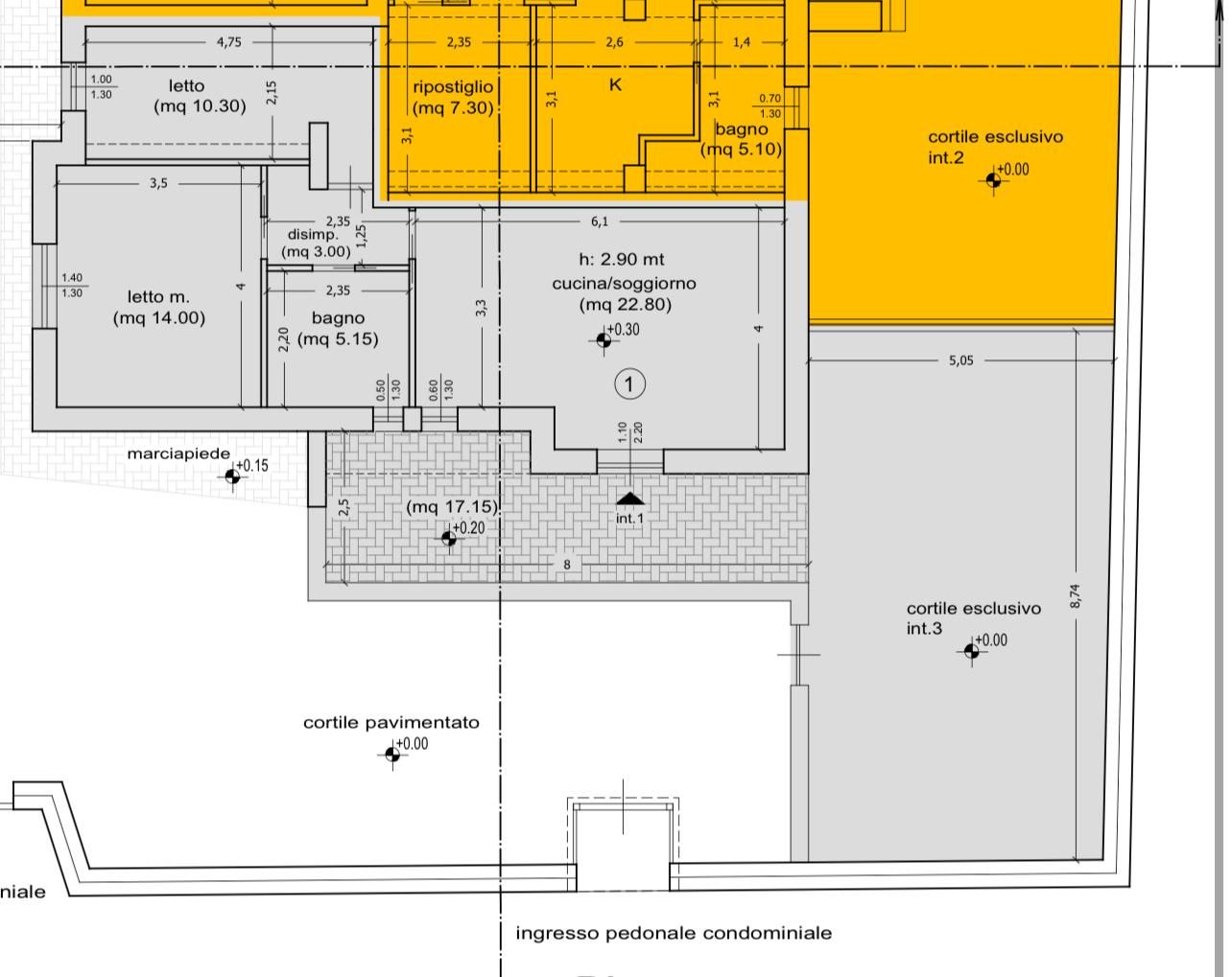
Cicciano:In zona residenziale e signorile disponiamo di un appartamento di nuova costruzione con terrazzo composto da:salone-cucina living,2 camere da letto e un accessorio,lavanderia/ripostiglio.Inoltre dispone di un box e di un posto auto.Consegna prevista per febbraio 2026.Per info o visionare l'immobile contattare il 3284276035.Inoltre ci sono altri appartamenti disponibili con terrazzi a livello .
N.B. Il prezzo si intende per l'appartamento chiavi in mano(no grezzo).Possibilità di personalizzazioni a discrezione della ditta esecutrice.Per info o visionare l'immobile contattare il 3284276035.
N.B. Il prezzo si intende per l'appartamento chiavi in mano(no grezzo).Possibilità di personalizzazioni a discrezione della ditta esecutrice.Per info o visionare l'immobile contattare il 3284276035.
Consistenze
| Descrizione | Superficie | Sup. comm. |
|---|---|---|
| Principali | ||
| Immobile - piano rialzato | 60 Mq | 60 Mqc |
| Accessorie | ||
| Posto auto | 12 Mq | 4 Mqc |
| Terrazza - piano terra | 40 Mq | 12 Mqc |
| Box/Garage - piano terra | 18 Mq | 9 Mqc |
| Totale | 85 Mqc | |
